At MID AND CONSTRUCTION PVT. LTD. You construct a dream. We will construct them into reality

Office Maps

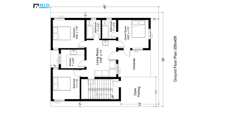
INTERIOR PLAN 2D

Visualizing interior designs with precision and clarity for better planning and execution.

Detailed 2D Planning

Precision Planning for Stunning Interiors

Our 2D interior plans are crafted to bring your design ideas to life, ensuring every detail is meticulously planned. Designing with precision for flawless execution.

Project Details

Service Overview

Our 2D planning services provide a clear and accurate layout for your interior designs. From furniture placement to spatial arrangements and decor, every aspect is detailed to perfection.

We work closely with you to ensure the design aligns with your vision and requirements. Our 2D plans serve as the foundation for bringing your dream interiors to reality.

project-details
project-details
project-details
project-details

Key Features

  • Detailed layouts for every room and area.
  • Accurate spatial planning and furniture placement.
  • Customized designs tailored to your preferences.
  • Seamless coordination between design and execution.
  • High-quality plans that ensure precise implementation.
  • Professional advice to optimize space and functionality.

Our 2D plans provide a comprehensive blueprint to visualize and execute your interior projects with confidence. Let us help you plan your space efficiently and beautifully.

Project Results

With an extensive portfolio of 2D interior plans, we have earned the trust of our clients by delivering designs that translate seamlessly into stunning interiors. Experience the clarity and precision of professional planning with us.